新たな人の往来がはじまる 古民家の宿「陽✴︎月」
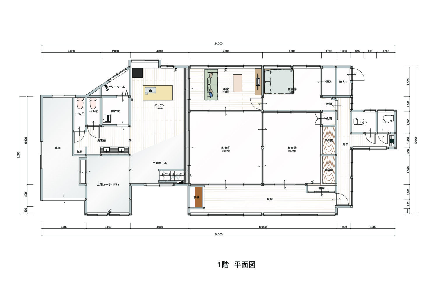
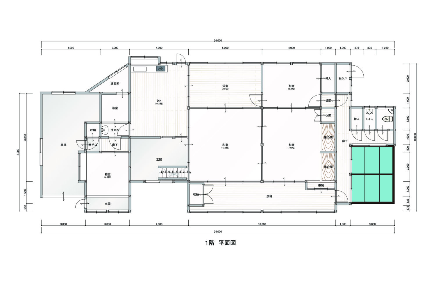
約150年前に建てられて空き家になっていた古民家。「平らな山」と書いて「ひらやま」。九州は、熊本山鹿の奥座敷「平山温泉郷」。 どこか懐かしい里山風景の中に源泉かけ流しのお湯を楽しめる旅館や立ち寄り湯、家族湯など温泉施設が点在しています。また、「山鹿灯籠まつり」などの祭礼や伝統芸能が数多く継承されています。住まいとしての継続が難しくても、地域性を活かした古民家の宿として、たくさんの方々の大切な時間を刻む場所へと生まれ変わらせたいという施主様の思いを大事にしました。水まわりの生活のしやすさを改善する一方、和室や床間・広縁などは解体することなく、なるべく元の姿を残し建築当初の姿を再現しました。現代の生活に比べると少し不便に感じる遣戸(やりど)や襖の引き戸の低さ、玄関からの段差ですらどこか懐かしさを感じます。また、日本の伝統的な和建築を体感できる場所・山鹿の歴史を学べる場所としても国内外の方から喜ばれる寛ぎの場所へと生まれ変わりました。
今回の古民家再生計画では1階部分のみをリノベーションし、住宅から古民家の宿として新たな歴史を刻みます。宿泊施設として再構築したことで、お施主様ご家族の休日の憩いの場・ご友人家族を招待して子どもたちが周りを気にせず思いっきりはしゃぐことができる時間の提供・更には元の持ち主である売主のご親族様が懐かしさを求めてご宿泊されたりと、様々な人の往来により無理なく維持管理が可能。今後は、露天風呂や2階部分に残された歴史的なものや壁に貼られた古い新聞などを活かしたリノベーションも計画中。身近に体感できる博物館のような探究心をくすぐられる宿として、たくさんの方に見守られながら継承していかれる予定です。
事例概要
所在地
熊本県山鹿市平山
工事費
1,800万円
種別
古民家
工期
2ヶ月
築年数
推定 築約150年
間取り
5SDK▶︎4SLDK
面積
204.12㎠




